Hiện nay tại các thành phố lớn, với quỹ đất xây dựng càng ngày càng trở nên hạn hẹp. Nhu cầu về các mẫu nhà phố đáp ứng không gian sống phù hợp số lượng thành viên trong gia đình ngày càng cao. Với đặc điểm nhà phố có mặt tiền hẹp, chiều sâu dài nên cách thiết kế ngoại thất tập trung chính vào mặt tiền cũng như cách bài trí không gian nội thất phải được tính toán khá kỹ lưỡng. Qua bài viết này, Kiến Trúc Đông Dương xin giới thiệu đến bạn đọc mẫu Thiết kế nhà phố 3 tầng mái ngói mái ngói tại Bắc Ninh với kiến trúc hiện đại và công năng tối ưu.
1. Thông tin dự án Thiết kế nhà phố 3 tầng mái ngói mái ngói
1.1. Ý tưởng Thiết kế nhà phố 3 tầng mái ngói mái ngói
Sở hữu mảnh đất có vị trí đẹp, nằm ngay trên trục đường chính nên giao thông thuận tiện vô cùng. Anh Lợi tại Bắc Ninh tìm đến Kiến Trúc Đông Dương với mong muốn sở hữu một thiết kế nhà ở mang vóc dáng hiện đại khẳng định được vị thế của mình và gia đình.
Sau khi khảo sát trực tiếp thực trạng lô đất, Kiến trúc sư xác định mảnh đất có ưu thế lớn về mặt phong thủy, khuôn viên vuông vắn rất thích hợp để xây dựng một ngôi nhà hiện đại mái lệch rộng rãi đúng như mong muốn của chủ đầu tư. Chính vì vậy, Thiết kế nhà phố 3 tầng mái ngói mái ngói lệch đã được thiết kế nên khiến ước mơ của gia đình Anh Lợi về mái ấm tiện nghi trở thành hiện thực.
1.2. Thông tin dự án
- Tên dự án : Thiết kế nhà phố 3 tầng mái ngói mái ngói – NP1223
- CĐT: Anh Lợi
- Địa điểm xây: Bắc Ninh
- DT xây: 8,2m x 23m
- Số tầng: 3 tầng
- Thiết kế: KTS Kiến Trúc Đông Dương
2. Nét đẹp kiến trúc mặt tiền trong thiết kế nhà phố 3 tầng mái ngói mái ngói
Thiết kế nhà phố 3 tầng mái ngói hiện đại được xây dựng trên nền diện tích đất có kích thước 8,2m x 23m. Dựa trên những khối hình học không gian các kiến trúc sư của Kiến Trúc Đông Dương đã sáng tạo nên một công trình có ngoại thất độc đáo cùng đầy đủ tiện nghi của cuộc sống hiện đại.
2.1. Thiết kế nhà phố 3 tầng mái ngói – Về bố cục, hình khối
Thiết kế nhà phố hiện đại 3 tầng của gia đình anh Lợi có khu vực mặt tiền sang trọng, thoáng đãng với không gian mở. Cảm hứng từ những khối hình học vuông vức, khỏe khoắn giúp ngôi nhà có tạo hình thật khác biệt. Việc thiết kế gara để xe rộng rãi mang tới sự thuận tiện cho chủ đầu tư, giải quyết được bài toán để xe nơi phố phường đông đúc, chật hẹp. Cửa gara được bố trí ngay sát vỉa hè tạo sự thuận tiện trong việc di chuyển và ngăn khói bụi có thể bay vào không gian sinh hoạt bên trong nhà. Có thể nói đây là cách tạo hình không gian về mặt hình khối, màu sắc, các tỷ lệ đều cân đối giúp ngôi nhà có diện tích nhỏ bé nhưng trông rất đẹp mắt và rộng hơn so với thực tế.
Kiến trúc sư lựa chọn thiết kế nhà phố phong cách hiện đại – với đặc trưng là sự phá vỡ các quy tắc về sự đối xứng, chuẩn mực của kiến trúc truyền thống. Không gian mặt tiền thể hiện sự phóng khoáng, tự do với các hình khối cách điệu, sắp xếp phi đối xứng với mục đích tạo không gian mở giúp kết nối với thiên nhiên bên ngoài. Vì chỉ có một mặt tiền, nên vị trí ban công, logia được mở thoáng tối đa để tận dụng ánh sáng tự nhiên cũng như làm vị trí thoát hiểm cho các phòng.

2.2. Thiết kế nhà phố 3 tầng mái ngói – Về vật liệu hoàn thiện
Chiêm ngưỡng phối cảnh kiến trúc mẫu thiết kế nhà phố 3 tầng mái ngói có quy mô xây dựng trên diện tích đất rộng gần 190m2 được thiết kế theo phong cách hiện đại với sự tiên phong của vật liệu mới trong xây dựng.
Không gian trở nên sang trọng hơn nhờ cách ốp gạch thẻ màu cà phê tạo nên nét đẹp hiện đại sang trọng không khác một căn biệt thự cao cấp. Sử dụng gạch ốp chi phí vừa phải, nhưng khiến mặt tiền lịch lãm và bắt mắt hơn rất nhiều. Ngoài giá trị về mặt thẩm mỹ thì cách ốp lát tường cũng là giải pháp tăng độ bền cho ngôi nhà, tăng tuổi thọ công trình và bảo vệ nét đẹp trường tồn theo thời gian.
Cách tạo hình khá độc đáo với mặt tiền là hệ thống cửa kính rộng. Vừa có mục đích cách điệu cho kiến trúc vừa là giải pháp thông gió, lấy sáng và tạo sự thoáng đãng, lưu thông không khí cho bên trong ngôi nhà.
2.3. Màu sắc trong thiết kế nhà phố 3 tầng mái ngói
Đứng từ xa có thể cảm nhận được màu sắc của ngôi nhà phố đang khoe sắc dưới ánh nắng mặt trời, phô diễn được sự hiện đại, tươi mới và lôi cuốn mọi ánh nhìn.
Thiết kế nhà phố 3 tầng mái ngói sử dụng màu trắng – gam màu trung tính làm màu nền. Sở dĩ kiến trúc sư lựa chọn màu trắng. Bởi gam màu này luôn tạo cho người nhìn ảo giác không gian rộng lớn, thoáng đãng hơn so với thực tế. Ứng dụng vào mẫu thiết kế nhà 3 tầng của gia đình anh Lợi. Kiến trúc sư của Kiến Trúc Đông Dương lựa chọn sắc màu trắng tinh khôi để sơn viền, các mảng kiến trúc phẳng tạo một nền tảng bền vững, tinh tế và mới mẻ.
Kết hợp với màu trắng là gam màu nâu cà phê – gam màu thể hiện sự may mắn, ấm cúng và vô cùng đầm ấm. Với sự kết hợp giữa 2 sắc màu thuộc các tone màu đối nghịch giữa trung tính và nóng. nhưng không hề tạo ra cảm giác rời rạc mà ngược lại chính sự đối nghịch trong cùng một không gian mới tạo thành một tổng thể lôi cuốn và thống nhất, khó tách rời. Nếu không có màu trắng làm nền cũng không thể khoe được hết sự rực rỡ, tinh tế của gam màu đỏ đô. Và ngược lại nếu không có những gam màu nổi bật, thì màu trắng sẽ trở nên đơn điệu.
Chính cách thiết kế mặt tiền và cách phối màu sắc độc đáo đã tạo nên một thiết kế nhà phố 3 tầng mái ngói có sức hút với điểm nhấn và chiều sâu nổi bật.
Với những giải pháp về thiết kế kiến trúc chúng tôi đưa ra đã mang tới sự tối ưu về không gian sử dụng cũng như tạo cảm giác ngôi nhà rộng mở, hài hòa với thiên nhiên, tạo sự độc đáo, cá tính và đầy sức lôi cuốn. Chúng tôi tin rằng với kiểu dáng đẹp mắt và tinh tế như này sẽ là những gợi ý cho các gia đình chuẩn bị lên kế hoạch thiết kế nhà phố 3 tầng trên lô đất mình đang sở hữu.
3. Mặt bằng công năng trong thiết kế nhà phố 3 tầng mái ngói
Với lợi thế nằm trên trục đường chính, sầm uất và thuận lợi giao thông ở Bắc Ninh, gia đình anh Lợi đã yêu cầu kiến trúc sư thiết kế nhà phố với mặt bằng công năng đáp ứng được tối đa nhu cầu sử dụng của các thành viên trong gia đình. Nội dung công năng các tầng trong Thiết kế nhà phố 3 tầng mái ngói lệch như sau:
- Tầng 1: Gara ô tô, Phòng khách, Phòng ăn + bếp, Tiểu cảnh Phòng ngủ, WC, Phòng sinh hoạt chung
- Tầng 2: Phòng ngủ master + WC riêng, Phòng giải trí gia đình, 2 phòng ngủ, 2WC, Giếng trời
- Tầng 3: Phòng thờ, Kho, Phòng đọc sách, sân phơi.
3.1. Mặt bằng công năng tầng 1 của thiết kế nhà phố 3 tầng
Thiết kế nhà phố 3 tầng mái ngói với công năng đủ tiêu chuẩn không gian ánh sáng luôn được kiến trúc sư chú trọng. Tầng 1 ngoài khu tiểu cảnh ngoài trời, một khu tiểu cảnh nhỏ cũng được bố trí bên cạnh cầu thang to rộng của ngôi nhà, tận dụng ánh sáng, không khí và gió từ khoảng giếng trời phía trên, làm cho căn nhà được hòa quyện cùng thiên nhiên, Không gian xanh tô điểm cho căn nhà hiện đại thêm sinh động.
Không gian phòng khách được bố trí đầy đủ tiện nghi và có nội thất sang trọng như ghế sofa tạo cho bạn sự thoải mái khi tiếp khách. Bên cạnh đó phần sàn của phòng khách còn được trải thảm tạo cho bạn không gian và cảm giác sang trọng, đẳng cấp.

Phòng bếp được thiết kế vừa là không gian nấu các bữa ăn, vừa là không gian cả gia đình bạn quây quần thưởng thức các bữa ăn, món ăn ngon và tốt cho sức khỏe. Đó còn là không gian mà tất cả các thành viên trong gia đình bạn muốn trở về sau một ngày làm việc, học tập vất vả. Không gian bếp còn là nơi lưu giữ hạnh phúc gia đình bạn.
Tầng 1 còn được bố trí phòng ngủ dành cho người già, phòng có đầy đủ tiện nghi, có cửa sổ hướng ra bên ngoài và có khu vệ sinh khép kín. Người già việc đi lại là rất khó khăn chính vì vậy khi đặt phòng ngủ tại tầng 1 sẽ tạo sự thuận tiện trong đi lại và sinh hoạt của người già và tạo giấc ngủ ngon hơn dành cho người già.
Khu bếp kết hợp bàn ăn và không gian sinh hoạt chung cho cả gia đình tạo ra khoảng không gian rộng hơn cho căn nhà, thêm vào đó có tiểu cảnh nhỏ giúp cả gia đình thư giãn bên nhau sau những giờ ăn. Sự liên tiếp giữa các không gian tạo cho gia đình sự thuận lợi trong sinh hoạt cũng như cảm giác thoải mái nhất.
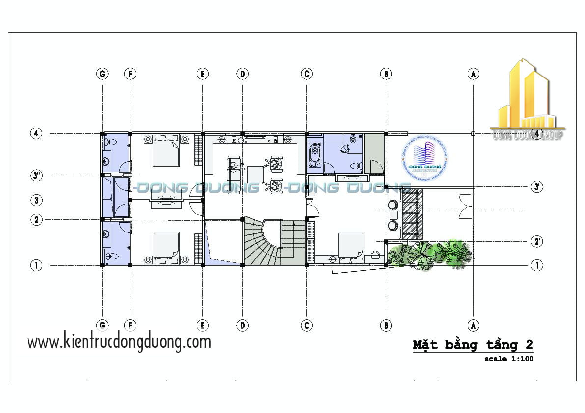
3.2. Mặt bằng công năng tầng 2 của thiết kế nhà phố 3 tầng
Với nhu cầu sử dụng, Trên tầng 2 là diện tích dành cho phòng ngủ master và 2 phòng ngủ nhỏ. Để giúp điều chỉnh ánh sáng và tạo không gian riêng tư, nên việc lắp thêm rèm cản sáng hoặc rèm vải tăng thêm vẻ đẹp cho nội thất ngôi nhà cũng được các kiến trúc sư đặc biệt lưu ý.
Phòng ngủ master luôn được ưu tiên đặt ở vị trí rộng rãi và có khoảng không gian thoáng tối đa, có view nhìn ra phía trước thông thoáng giúp cho gia chủ dễ bề quan sát. Hai phòng ngủ phía sau cũng không rơi vào thế bí khi được lấy sáng và gió từ giếng trời ngay bên cạnh cầu thang.

3.3. Mặt bằng công năng tầng 3 của thiết kế nhà phố 3 tầng
Trên tầng 3 của ngôi nhà được thiết kế phòng thờ – nơi thờ cúng tổ tiên được đặt ở vị trí trên cao, cao ráo và thêm phần tôn nghiêm. Ngoài ra là không gian cho khu giặt, phơi đồ và các khoảng sân thượng để gia chủ trồng cây cảnh, hoặc có thể tận dụng làm vườn rau,.. giúp tăng sắc xanh cho ngôi nhà.
4. Kiến Trúc Đông Dương – Đơn vị thiết kế thi công chuyên nghiệp
4.1. Tổng quan về Kiến Trúc Đông Dương
Kiến Trúc Đông Dương tự hào là đơn vị thiết kế và thi công kiến trúc nội ngoại thất uy tín hàng đầu tại Việt Nam. Bằng tâm huyết, bằng kinh nghiệm, sự nhiệt tình và sáng tạo, đội ngũ Kiến Trúc Đông Dương tự tin mang đến cho khách hàng những phong cách thiết kế thẩm mỹ, nâng tầm giá trị cho căn nhà bạn. Đến với chúng tôi, bạn chắc chắn sẽ hài lòng về không gian sống của mình.
Chúng tôi hoạt động với sứ mệnh mang đến cho khách hàng những giá trị sáng tạo khi thiết kế, thi công nội thất để không gian sống của quý khách hàng trở nên tuyệt vời hơn.
Với đội ngũ kiến trúc sư dày dặn kinh nghiệm, chúng tôi thiết kế những công trình đẳng cấp như thiết kế biệt thự sang trọng,Thiết kế nhà phố, Thi công nhà liền kề…. Những sản phẩm vượt trội về chất lượng, đáp ứng được đúng nhu cầu cũng như sự kỳ vọng của khách hàng. Kiến Trúc Đông Dương không ngừng đổi mới, ngày càng hoàn thiện và nhanh chóng khẳng định được vị thế thương hiệu là một công ty tư vấn – thiết kế – thi công kiến trúc nội ngoại thất uy tín với phong cách thiết kế rất riêng chỉ có ở Kiến Trúc Đông Dương.
Nếu quý khách có nhu cầu thiết kế nhà phố 3 tầng mái ngói hiện đại, Hay những không gian sống mang đậm dấu ấn cá nhân. Hãy liên hệ với chúng tôi để nhận tư vấn và trải nghiệm những dịch vụ đa dạng mà chúng tôi mang đến. Kiến Trúc Đông Dương rất hân hạnh được phục vụ quý khách hàng!
4.2. Thông tin liên hệ Kiến Trúc Đông Dương
CÔNG TY CỔ PHẦN KIẾN TRÚC NỘI THẤT ĐÔNG DƯƠNG
- Địa chỉ: HA9-70, Đường Hải Âu 9, KĐT Vinhome OCean Park 2, Văn Giang, Hưng Yên
- Hotline: 098.1243.588
- Website: https://kientrucdongduong.com















