Thiết kế biệt thự 3 tầng chữ L mang phong cách châu Âu luôn là nguồn cảm hứng bất tận thể hiện phong cách riêng của gia chủ. Sự khác biệt của biệt thự 3 tầng Châu Âu thể hiện đẳng cấp, quyền quý và cá tính rất rất riêng. Điều đó thể hiện qua tác phẩm do đội ngũ kiến trúc sư của Kiến Trúc Đông Dương thiết kế nằm trong bộ sưu tập mẫu nhà đẹp mới nhất của chúng tôi. Sau đây bạn hãy cùng chiêm ngưỡng thiết kế độc đáo này để có thêm ý tưởng cho tổ ấm tương lai của riêng mình nhé!
1. Thông tin dự án thiết kế biệt thự 3 tầng chữ L
1.1. Ý tưởng và phương án thiết kế biệt thự 3 tầng chữ L kiểu Châu Âu
Những thiết kế biệt thự 3 tầng chữ L 4 phòng ngủ đẹp thể hiện được sự tinh tế, trọn vẹn trong bố cục kiến trúc,và sự hài hòa, gần gũi trong thiết kế kiến trúc và thiết kế nội thất. Đây là một trong những mẫu nhà đẹp, phù hợp với không gian xây dựng ở nông thôn. Lối kiến trúc đơn giản, không quá cầu kỳ, đem lại cho ngôi nhà sự trọn vẹn về mặt kiến trúc, cũng như tính thẩm mỹ tối ưu nhất.
Bắt nguồn từ nhu cầu xây dựng thực tế, mong muốn của chủ đầu tư về một không gian nhà ở hiện đại. Dựa trên những nhu cầu xây dựng thực tế của gia đình Anh Thọ ở Đan Phượng – Hà Nội. Đội ngũ kiến trúc sư của chúng tôi đưa ra phương án tư vấn thiết kế sao cho phù hợp với nhu cầu của gia đình.
Từ những yêu cầu cơ bản khi thiết kế biệt thự 3 tầng chữ L từ chủ đầu tư dưới đây chính là tiền đề để kiến trúc sư đưa ra được phương án thiết kế tối ưu nhất cho chủ đầu tư bao gồm:
- Thiết kế biệt thự có 4 phòng ngủ, tiện nghi, sắp xếp khoảng 1 phòng ở tầng 1, 3 phòng trên tầng 2
- Mẫu nhà 3 tầng hình dạng chữ L, tận dụng khoảng khuyết để làm sân
- Thiết kế nhà ở dạng mái ngói thái đơn giản, không quá cầu kỳ
- Công năng sử dụng vừa vặn, đáp ứng được nhu cầu xây dựng và sinh hoạt của mọi thành viên trong gia đình.
- Chi phí xây nhà trọn gói dưới 1.5 tỷ đồng
Với những yêu cầu như trên, phương án thiết kế biệt thự 3 tầng chữ L 4 phòng ngủ được kiến trúc sư Kiến Trúc Đông Dương đưa ra đáp ứng được mọi yêu cầu tư vấn thiết kế ngôi nhà từ phía chủ đầu tư một cách tối ưu và đem lại hiệu quả thiết kế tối ưu nhất.
1.2. Thông tin dự án:
- Tên dự án: Thiết kế biệt thự 2 tầng chữ L kiểu Châu Âu – BT1516
- CĐT: Anh Thọ
- Địa điểm xây: An Thọ – Đan Phượng – HN
- DT xây: 15m x 12.5m
- Số tầng: 3 tầng
- Thiết kế: KTS. Kiến trúc Đông Dương
2. Chi tiết thiết kế biệt thự 3 tầng chữ L phong cách Châu Âu
2.1. Hình khối kiến trúc trong thiết kế biệt thự 3 tầng chữ L
Khác biệt so với các mẫu thiết kế biệt thự tân cổ điển 3 tầng, ở mẫu thiết kế biệt thự 3 tầng chữ L mang phong cách hiện đại này, mọi các chi tiết trang trí kiến trúc, cho đến sự hình thành phong cách kiến trúc chủ đạo cũng đem lại cho chúng ta sự gần gũi về mặt nhìn nhận. Thiết kế kiến trúc mẫu nhà 3 tầng chữ L 4 phòng ngủ được thực hiện mang phong cách hiện đại.
Với tiêu chí là sự đơn giản, dễ gần trong trang trí kiến trúc, cùng với hệ thống màu sắc, chi tiết trang trí đơn giản, không quá cầu kỳ cũng sẽ tạo nên được tính hấp dẫn cho ngoại thất của công trình tuyệt đẹp này. Không gian ngoại thất được thể hiện một cách chân thực qua hình ảnh 3D bản vẽ thiết kế kiến trúc.
Toàn bộ phần tường ngoại thất của mẫu thiết kế nhà 3 tầng chữ L hiện đại được sử dụng là tường được trát phẳng, một số chi tiết trang trí, kẻ chỉ lõm, làm nên tính hấp dẫn cho thiết kế kiến trúc, ngoại thất của công trình .

2.2. Màu sắc sử dụng trong thiết kế biệt thự 3 tầng chữ L
Màu sắc trong thiết kế cũng luôn là yếu tố quan trọng để đánh giá sự thành công của một công trình kiến trúc nào đó. Bởi vậy, việc thiết kế tường ngoại thất màu trắng tinh tế, kết hợp cùng với màu mái ngói xanh xám sẫm màu, đem lại cho ngôi nhà sự nổi bật về màu sắc, và ấn tượng vô cùng trong cách thức vận dụng màu sắc. Đảm bảo các tiêu chuẩn ở từng chi tiết trang trí kiến trúc.
Để có được sự hấp dẫn, và thống nhất về mặt kiến trúc trong việc thể hiện được sự ấn tượng và độc đáo cho công trình kiến trúc này. Yếu tố tương đồng trong kiến trúc cũng được thể hiện ở màu sắc ngoại thất của công trình. Những mảng tường ốp gạch đỏ nổi bật trên nền tường trắng cũng chính là điểm nhấn để ngôi biệt thự chữ L thêm nổi bật.
2.3. Vật liệu hoàn thiện cho biệt thự 3 tầng chữ L
Hoàn thiện thiết kế biệt thự 3 tầng chữ L đảm bảo được tính thẩm mỹ, và sự bề thế cho ngoại thất của công trình đó cũng là điều mà Kiến Trúc Đông Dương đặt lên hàng đầu.
Hệ thống cửa trong thiết kế biệt thự 3 tầng chữ L được sử dụng là loại cửa khung nhôm kết hợp với kính. Đây là chất liệu được ứng dụng nhiều trong các công trình kiến trúc hiện nay. Khi mà việc sử dụng các loại vật liệu thuần gỗ được ứng dụng ngày càng ít trong mỗi công trình. Việc thiết kế và thi công biệt thự kết hợp với vật liệu kính đem lại cho ngôi nhà sự mới mẻ, tinh tế và trọn vẹn vô cùng.
2.4. Thiết kế mái của biệt thự 3 tầng chữ L có gì đặc biệt?
Dưới con mắt và tâm hồn nghệ thuật của các kiến trúc sư Kiến Trúc Đông Dương, Thiết kế nhà vườn được nổi bật với nét cổ kính của biệt thự kiểu châu Âu. Phần mái trong thiết kế biệt thự 3 tầng 4 phòng ngủ được sử dụng loại mái ngói thái tinh tế, đảm bảo được tính thẩm mỹ, độ sang trọng cho công trình. Chi phí cho phần mái của công trình được chuẩn bị rất cẩn thận và khá chi tiết. Hệ mái ngói tối màu được mở thêm cửa sổ mái tạo sự thông thoáng cho tầng áp mái.
3. Mặt bằng công năng trong thiết kế biệt thự 3 tầng chữ L
Bản vẽ tổng mặt bằng mẫu thiết kế biệt thự 3 tầng chữ L hiện đại thể hiện được kích thước tổng quan lô đất xây dựng. Vị trí lô đất xây dựng, vị trí xây dựng của ngôi nhà được đặt ở trong cùng của mảnh đất. Vị trí của nhà, cùng với sân, vườn, tạo nên được một không gian sống thoải mái, rộng rãi và tiện nghi vô cùng. Sân trước của mẫu thiết kế nhà 2 tầng chữ L 4 phòng ngủ được thực hiện với diện tích sử dụng khá rộng rãi, thoáng mát, và đảm bảo được giá trị thẩm mỹ cho công trình.
3.1. Mặt bằng công năng tầng 1
Kiến trúc biệt thự 3 tầng chữ L kiểu Châu Âu với mặt bằng công năng được bố trí theo nếp sinh hoạt của người Việt. Bản vẽ mặt bằng công năng sử dụng tầng 1 của mẫu thiết kế biệt thự này đảm bảo được yếu tố tinh tế cho thiết kế kiến trúc của công trình. Không gian sảnh chính dẫn tới phòng khách đặt ở vị trí thoáng nhất, có tầm nhìn ra hai phía của khuôn viên nhà. Phòng thờ được đặt trang trọng ở vị trí giữa nhà, tiện lợi cho việc thờ cúng của gia chủ.

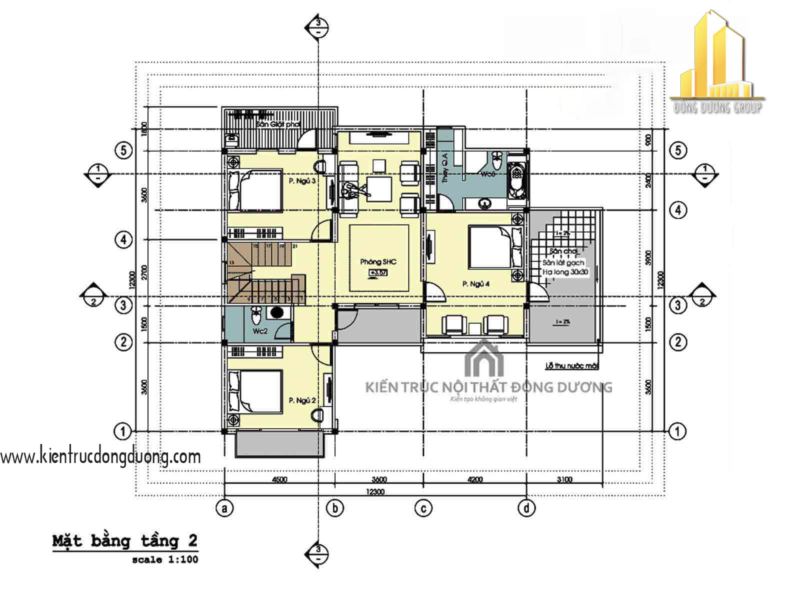
3.2. Mặt bằng công năng tầng 2
Tầng 2 của biệt thự 3 tầng chữ L được bố trí đầy đủ công năng sử dụng với 3 phòng ngủ, phòng sinh hoạt chung nơi tụ họp của cả gia đình. Không gian sinh hoạt chung được thực hiện kết nối với nhau, mang lại vẻ đẹp của sự thông thoáng, gần gũi. Thiết kế 2 nhà vệ sinh, đáp ứng đủ nhu cầu sử dụng của gia đình khi đông người.
Biệt thự 3 tầng chữ L được thiết kế theo phong cách đồng quê Châu Âu, Với phong cách kiến trúc độc đáo này, ngôi nhà trở lên nổi bật và sang trọng. Ngôi nhà được thiết kế với ban công tầng 2 rộng đua ra làm mái che cho gara, vừa làm sân chơi cho gia đình.

3.3. Mặt bằng công năng tầng 3
Tầng áp mái là không gian trên cùng ngôi nhà. Khi thiết kế biệt thự 3 tầng hiện đại, Các kiến trúc sư đã thiết kế tầng áp mái thành nhà kho, Giúp gia chủ tận dụng không gian để lưu trữ đồ đạc trong nhà.
Thiết kế biệt thự 3 tầng Phong cách Châu Âu với khuôn viên rộng nên tất cả các phòng đều được tiếp xúc với ánh sáng tự nhiên và không khí trong lành.
Tham khảo các dự án thiết kế biệt thự 3 tầng tại Kiến Trúc Đông Dương:
- Thiết kế biệt thự tân cổ điển 3 tầng
- Thiết kế biệt thự nhà vườn 2 tầng
- Thiết kế biệt thự phố 3 tầng hiện đại
- Mẫu biệt thự tân cổ điển 3 tầng
4. Hồ sơ thiết kế biệt thự 3 tầng chữ L phong cách Châu Âu
Thiết kế biệt thự 3 tầng chữ L kiểu Châu Âu là một mẫu biệt thự đẹp, thể hiện được quy mô, tính chất dành cho một biệt thự hiện đại. Để xây dựng một công trình kiến trúc Châu Âu đẹp, đòi hỏi bạn phải lựa chọn đơn vị có năng lực chuyên sâu, từ kiến trúc sư thiết kế, kỹ sư giám sát, kỹ thuật thi công biệt thự.
Kiến Trúc Đông Dương với với đội ngũ kiến trúc sư có kinh nghiệm lâu năm trong thiết kế biệt thự. Cùng với gu thẩm mỹ và sự am hiểu sâu rộng kiến trúc nghệ thuật và kỹ thuật,văn hóa phương Đông cũng như văn hóa, tâm lý người Việt. Chúng tôi luôn muốn lắng nghe ý kiến, nguyện vọng của khách hàng để đưa ra những tư vấn hợp lý nhất kiến tạo nên không gian sống lý tưởng cho bạn và gia đình.
Khi thực hiện bất cứa công trình nào, Kiến Trúc Đông Dương cũng đều thể hiện thông tin chi tiết về khối lượng công việc nằm trong hồ sơ bản vẽ thiết kế thi công. Bộ hồ sơ sẽ bao gồm bao gồm:
- Phần Kiến trúc : các bản vẽ mặt bằng bố trí nội thất, bản vẽ tường xây các tầng, chi tiết cấu tạo các mặt đứng, mặt cắt công trình và tất cả các bản vẽ kỹ thuật thi công phần chi tiết cửa, vệ sinh, cầu thang….cũng như quy hoạch xây dựng cổng và tường rào.
- Phần Kết cấu : Các bản vẽ thuyết minh chung, Bản vẽ chi tiết cấu tạo móng, chi tiết cấu tạo cột, dầm, sàn…được tính toán khoa học với hệ số an toàn hợp lý đối với từng hạng mục công trình.
- Phần bản vẽ thiết kế điện cho toàn bộ không gian các tầng.
- Phần bản vẽ thiết kế cấp thoát nước tổng thể.
Đến với Kiến Trúc Đông Dương bạn sẽ hoàn toàn yên tâm về chất lượng công trình. Chúng tôi bằng sự nhiệt huyết với nghề và tinh thần học hỏi cao. Luôn tiếp thu những xu hướng mới nhằm đem đến cho quý khách hàng những không gian sống hoàn hảo nhất.
Cùng tham khảo các dịch vụ chi tiết tại Kiến Trúc Đông Dương:
5. Thông tin liên hệ Kiến Trúc Đông Dương
CÔNG TY CỔ PHẦN KIẾN TRÚC NỘI THẤT ĐÔNG DƯƠNG
Địa chỉ: HA9-70, Đường Hải Âu 9, KĐT Vinhome OCean Park 2, Văn Giang, Hưng Yên
Hotline: 098.1243.588
Website: https://kientrucdongduong.com















