Biệt thự lâu đài 4 tầng phong cách tân cổ điển không chỉ là một ngôi nhà mà còn là biểu tượng của sự sang trọng và đẳng cấp. Công trình được thiết kế bởi kiến trúc sư tài năng từ Kiến trúc Đông Dương, tọa lạc tại Hải Dương, trên một mảnh đất rộng lớn với diện tích 20m x 13m. Với diện tích xây dựng 125m² và thiết kế bề thế 4 tầng, biệt thự này khẳng định sự uy nghi, vững chắc và vị thế cao quý của gia chủ.
1.Thông tin chi tiết về dự án thiết kế biệt thự lâu đài 4 tầng
- Tên công trình: Thiết kế biệt thự lâu đài 4 tầng
- Chủ đầu tư: Anh Sang
- Địa điểm xây dựng: Hải Dương
- Diện tích đất: 20m x 13m
- Diện tích xây dựng: 125m²
- Số tầng: 4 tầng (3 tầng nổi + 1 tầng hầm)
2.Thiết kế ngoại thất Biệt thự lâu đài 4 tầng Tân cổ điển
Thiết kế biệt thự lâu đài 4 tầng theo phong cách tân cổ điển hai mặt tiền tạo nên vẻ bề thế, sang trọng, đồng thời mang lại cảm giác uy nghi, vững chắc. Các chi tiết hoa văn và phào chỉ được chọn lọc và chăm chút kỹ lưỡng, mang đến sự hòa quyện hoàn hảo giữa các yếu tố kiến trúc.
2.1. Hệ thống trụ cột và mái vòm
Hệ thống trụ cột khỏe khoắn kết hợp với khung cửa sổ giả cột tạo nên cảm giác đan xen, chắc chắn. Các cửa chính được làm từ gỗ tự nhiên sơn đỏ, nổi bật trên nền vàng hoàng gia và hệ cột trắng. Cửa sổ làm từ kính cường lực ô vuông, tạo sự thoáng đãng cho không gian.
Mái vòm trắng xanh cao vút là điểm nhấn hoàn thiện ngoại thất, mang lại vẻ uy nghi, quyền lực. Hệ thống mái vòm với cửa sổ chớp vòm giúp không gian nội thất mát mẻ và thoáng đãng, đồng thời tạo điểm nhấn thu hút cho tổng thể công trình.

2.2.Họa tiết trang trí biệt thự lâu đài 4 tầng
Trang trí biệt thự tân cổ điển không quá phô trương các chi tiết hoa văn, phào chỉ rườm rà, nhưng vẫn giữ lại những nét uyển chuyển, tinh tế mang tính vương giả. Toàn bộ tường được sơn vàng cam, phối hợp với hệ trụ cột giả màu trắng xanh, tạo nên sự hài hòa và nổi bật.
Nội thất các tầng của biệt thự được thiết kế chú trọng vào sự tiện nghi và thẩm mỹ, đảm bảo sự hài hòa và thoải mái cho các thành viên trong gia đình.

2.3.Thiết kế biệt thự lâu đài 4 tầng – Phối cảnh ngoại thất
Hệ thống cổng và tường rào
Không gian xung quanh biệt thự lâu đài 4 tầng được lát gạch đá tạo nền vững chắc, thoáng mát. Hệ thống cổng và tường rào kiên cố với cổng hoành tráng, chi tiết hoa văn độc đáo, màu sắc nổi bật, kết hợp với các cột kép và rào sắc nhọn, tạo nên sự bề thế và an toàn cho toàn bộ công trình.
Thiết kế cổng và tường rào
Cổng và tường rào được thiết kế chắc chắn, kiên cố, kết hợp hài hòa với tổng thể kiến trúc biệt thự. Các chi tiết hoa văn và màu sắc được chọn lọc kỹ lưỡng, tạo nên vẻ đẹp độc đáo, thu hút.
Sân vườn và khuôn viên
Khuôn viên xung quanh biệt thự được bố trí hợp lý, tạo không gian xanh mát, thoáng đãng. Các khu vực sân vườn, tiểu cảnh được chăm chút tỉ mỉ, mang lại cảm giác thư giãn, yên bình.

Xem thêm Mẫu thiết kế khác:
- Thiết kế nhà phố đẹp 2024
- 50+ Mẫu biệt thự đẹp nhiều phong cách
- Tổng hợp những mẫu biệt thự, nhà vườn đẹp
3. Thiết kế biệt thự lâu đài 4 tầng – Công năng các tầng
Biệt thự lâu đài trên mảnh đất lý tưởng hai mặt tiền, với chiều dài 20m và mặt tiền rộng 13m, được kiến trúc sư thiết kế với sảnh chính hướng ra mặt tiền 12m hoành tráng, phô bày vẻ đẹp từ cả hai hướng. Mỗi chi tiết hoa văn đều được chọn lọc kỹ càng, thay gia chủ khẳng định địa vị và vị thế của mình.
3.1. Thiết kế tầng hầm biệt thự lâu đài
Tầng hầm của biệt thự được thiết kế tối ưu, vừa tiện nghi vừa đảm bảo không gian rộng rãi cho các hoạt động gia đình:
- Bếp nấu: Khu vực nấu ăn rộng rãi và tiện nghi.
- Phòng ăn: Kết nối trực tiếp với bếp, tạo không gian ấm cúng cho bữa ăn gia đình.
- WC: Nhà vệ sinh tiện lợi.
- Gara ô tô: Khu vực để xe rộng rãi, an toàn.
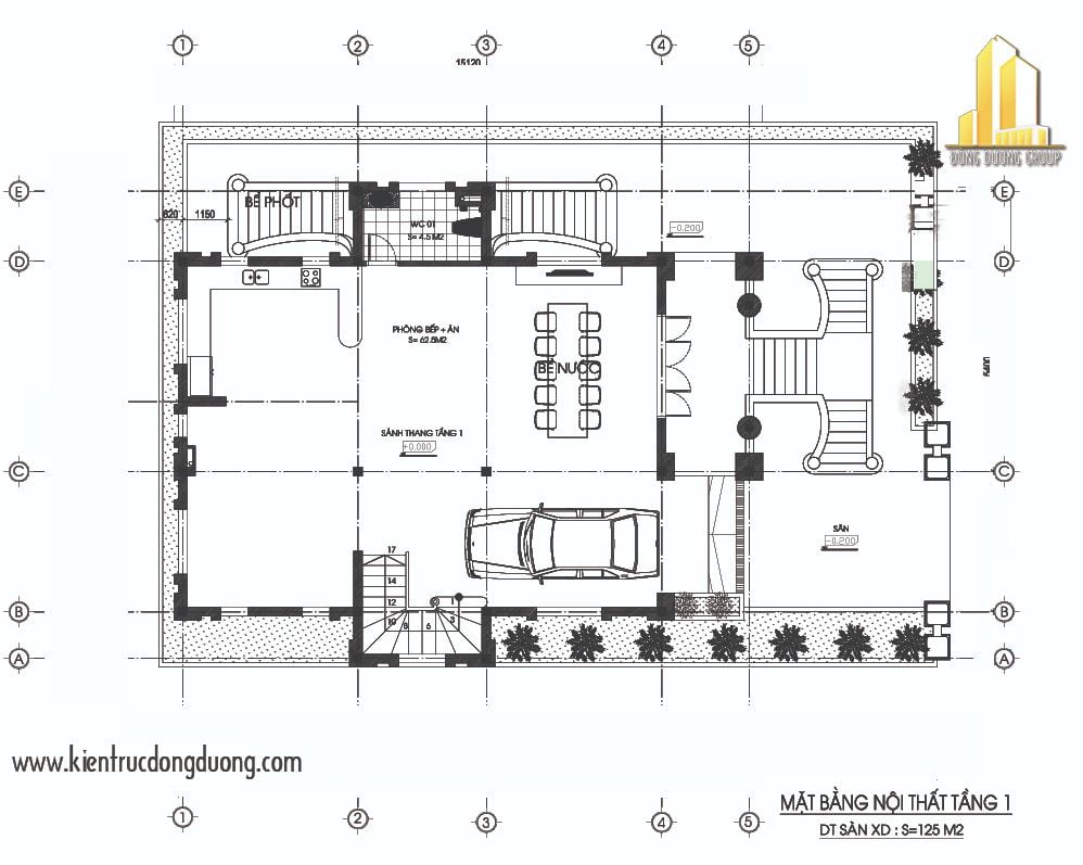
3.2. Nội thất Tầng 1 – Thiết kế biệt thự lâu đài 4 tầng
Tầng 1 là không gian sinh hoạt chính của gia đình, với các phòng chức năng được bố trí hợp lý:
- Sảnh chính: Khu vực đón khách sang trọng, hoành tráng.
- Phòng khách: Không gian rộng rãi, thoáng mát, được thiết kế tinh tế.
- 1 phòng ngủ: Phòng ngủ tiện nghi, thoải mái.
- 1 WC: Nhà vệ sinh tiện lợi phục vụ cho sinh hoạt hàng ngày.

3.3.Nội thất tầng 2 – Thiết kế Biệt thự lâu đài 4 tầng
Tầng 2 tập trung vào không gian nghỉ ngơi và sinh hoạt chung của gia đình:
- 2 phòng ngủ: Các phòng ngủ được thiết kế rộng rãi, thoáng đãng.
- WC: Nhà vệ sinh tiện nghi.
- Phòng sinh hoạt chung: Khu vực sinh hoạt chung ấm cúng cho các thành viên trong gia đình.
- Phòng thờ: Nơi thờ cúng trang trọng, tôn nghiêm.
3.4.Nội thất tầng 3 – Biệt thự lâu đài 4 tầng tân cổ điển
Tầng 3 là không gian dành cho các hoạt động gia đình và tiện ích phụ trợ:
- 2 phòng ngủ: Phòng ngủ được thiết kế hiện đại, thoải mái.
- WC: Nhà vệ sinh tiện lợi.
- Phòng giặt: Khu vực giặt giũ tiện nghi.
- Sân phơi: Không gian phơi đồ thoáng đãng.
4. Hồ sơ thiết kế biệt thự lâu đài 4 tầng đầy đủ
Thiết kế biệt thự lâu đài 4 tầng theo phong cách tân cổ điển hai mặt tiền không chỉ đòi hỏi sự tỉ mỉ và kỹ lưỡng trong từng chi tiết mà còn cần một bộ hồ sơ thiết kế đầy đủ và chi tiết. Hồ sơ này không chỉ giúp chủ đầu tư có cái nhìn tổng quan về toàn bộ công trình mà còn là cơ sở để thi công chính xác và hiệu quả.
4.1. Bản vẽ kiến trúc
Bản vẽ kiến trúc là phần quan trọng nhất trong hồ sơ thiết kế, bao gồm các bản vẽ mặt bằng, mặt đứng, mặt cắt và các chi tiết kiến trúc:
- Bản vẽ mặt bằng: Hiển thị bố trí các phòng, các không gian chức năng ở mỗi tầng, giúp chủ đầu tư hình dung rõ ràng về cách sử dụng không gian.
- Bản vẽ mặt đứng: Cho thấy hình dáng bên ngoài của ngôi nhà từ các góc nhìn khác nhau, bao gồm mặt tiền và các mặt bên.
- Bản vẽ mặt cắt: Cung cấp thông tin về chiều cao các tầng, cấu trúc mái, và các chi tiết nội thất.
- Chi tiết kiến trúc: Bao gồm các chi tiết trang trí, hệ thống cửa, trụ cột, mái vòm, hoa văn, phào chỉ, giúp thợ thi công thực hiện chính xác.
4.2. Bản vẽ kết cấu
Bản vẽ kết cấu đảm bảo tính an toàn và bền vững cho công trình:
- Bản vẽ móng: Chi tiết về cấu tạo móng, bao gồm móng băng, móng cọc, và móng bè.
- Bản vẽ dầm sàn: Hiển thị kết cấu dầm, sàn của từng tầng.
- Bản vẽ cột: Cung cấp thông tin về vị trí, kích thước và chi tiết cột.
- Bản vẽ kết cấu mái: Thông tin về hệ thống kết cấu chịu lực của mái nhà.
4.3. Bản vẽ điện
Hệ thống điện được thiết kế khoa học, an toàn, bao gồm:
- Bản vẽ điện chiếu sáng: Vị trí và loại đèn chiếu sáng, công tắc, ổ cắm điện.
- Bản vẽ điện động lực: Sơ đồ cấp điện cho các thiết bị tiêu thụ lớn như điều hòa, bơm nước, máy giặt.
- Bản vẽ hệ thống điện thông minh: Hệ thống điều khiển thông minh, cảm biến, và các thiết bị tự động hóa.
4.4. Bản vẽ nước
Hệ thống cấp thoát nước và các thiết bị vệ sinh:
- Bản vẽ cấp nước: Vị trí và đường ống cấp nước cho các thiết bị sử dụng nước.
- Bản vẽ thoát nước: Hệ thống thoát nước mưa, nước thải sinh hoạt, và nước thải vệ sinh.
- Bản vẽ thiết bị vệ sinh: Vị trí và chi tiết các thiết bị vệ sinh như bồn tắm, bồn cầu, chậu rửa.

4.5. Hồ sơ pháp lý – Hồ sơ xin phép xây dựng
Hồ sơ pháp lý đảm bảo công trình tuân thủ các quy định pháp luật và được cấp phép xây dựng:
- Giấy phép xây dựng: Hồ sơ xin cấp phép xây dựng từ các cơ quan chức năng.
- Hồ sơ pháp lý: Các giấy tờ pháp lý liên quan đến quyền sử dụng đất, quyền sở hữu nhà ở.
- Bản vẽ thẩm định: Các bản vẽ và tài liệu thẩm định từ cơ quan chức năng.
Bộ hồ sơ thiết kế biệt thự lâu đài 4 tầng phong cách tân cổ điển hai mặt tiền không chỉ là tài liệu hướng dẫn thi công mà còn là cơ sở để đảm bảo chất lượng, tiến độ, và chi phí của công trình. Một bộ hồ sơ thiết kế đầy đủ và chi tiết giúp chủ đầu tư yên tâm về quá trình xây dựng và mang lại hiệu quả cao nhất cho dự án.
Với Kiến trúc Đông Dương, mỗi bộ hồ sơ thiết kế không chỉ là sản phẩm của sự tỉ mỉ và chuyên nghiệp mà còn là cam kết về chất lượng và sự hài lòng của khách hàng. Chúng tôi tự hào mang đến những công trình kiến trúc đẹp mắt, đẳng cấp và bền vững, đáp ứng mọi yêu cầu và mong đợi của chủ đầu tư
5. Thông tin liên hệ Kiến Trúc Đông Dương
CÔNG TY CỔ PHẦN KIẾN TRÚC ĐÔNG DƯƠNG
Địa chỉ: HA9-70, Đường Hải Âu 9, KĐT Vinhome OCean Park 2, Văn Giang, Hưng Yên
Hotline: 098.1243.588
Website: https://kientrucdongduong.com

















