Không chỉ có sự hiện đại trong kiến trúc, những mẫu thiết kế nhà phố 3 tầng mặt tiền 4m còn “Vuông thành sắc cạnh” về cả tổng thể. Có nhiều gia chủ không chỉ mong muốn có một phương án thiết kế mới mẻ, sang trọng mà đối với mặt bằng công năng cũng cần phải tiện nghi, hiệu quả, không chỉ đảm bảo tính thẩm mĩ mà cả yếu tố kỹ thuật. Với kinh phí vừa phải, mẫu thế kế được các KTS Kiến Trúc Đông Dương giới thiệu sau đây chắc chắn sẽ làm hài lòng mọi khách hàng.
1. Giới thiệu về dự án thiết kế nhà phố 3 tầng mặt tiền 4m
Kiến trúc nhà ống đã trở thành xu hướng quen thuộc với rất nhiều chủ đầu tư ở cả thành phố lớn hay vùng nông thôn yên bình. Mang trong mình ý tưởng về một không gian sống độc đáo, thể hiện đặc trưng phong cách của bản thân. Anh Dương đã tham khảo rất nhiều các mẫu nhà đẹp của công ty ty kiến trúc cũng như các phương án tư vấn thiết kế nhà của những công ty đó.
Mặc dù vậy vẫn chưa có đơn vị nào đáp ứng được đầy đủ yêu cầu và mong muốn của anh. Sau nhiều lần tìm hiểu và được người quen giới thiệu tới Kiến Trúc Đông Dương. Cuối cùng anh cũng nhận về được một phương án thiết kế phối cảnh hài lòng cùng bản vẽ bố trí công năng vô cùng hợp lý phát huy được toàn bộ lợi thế của quỹ đất đang sở hữu.
1.1. Yêu cầu của chủ đầu tư khi thiết kế nhà phố 3 tầng mặt tiền 4m
Qua việc trao đổi các thông tin với chủ đầu tư là anh Khoa thì các kiến trúc sư Kiến Trúc Đông Dương đã vạch ra chi tiết kế hoạch thiết kế nhà phố cụ thể như sau:
- Xây dựng mẫu nhà ống hiện đại mặt tiền 4m với kiến trúc mặt tiền phải có sự phá cách độc đáo, đón nắng và ánh sáng một cách tự nhiên và linh hoạt nhất.
- Ban công rộng có thể đặt được tiểu cảnh.
- Mặt bằng công năng sử dụng bố trí 3 phòng ngủ sao cho khoa học
- Thiết kế nhà phố 3 tầng mặt tiền 4m hài hòa với kiến trúc tổng quan, đảm bảo sự kết nối giữa ngoại thất và nội thất bên trong. Khu vực ban công thiết kế rộng, đảm bảo sự thông thoáng và thiết kế tối ưu hoá không gian, đảm bảo sự sang trọng, không gian hiện đại và tô nhấn những điểm nhấn trong Thiết kế kiến trúc của công trình.
- Thiết kế hướng nhà, hướng phòng khách, phòng bếp và phòng thờ đáp ứng được phong thủy và tuổi của gia chủ
- Công năng dự kiến của mẫu nhà ống đẹp phải đảm bảo đáp ứng nhu cầu sử dụng của các thành viên trong gia đình.
Có thể bạn quan tâm:
- Thiết kế biệt thự phố 3 tầng hiện đại
- Thiết kế nhà phố mái Thái 3 tầng
- Thiết kế nhà phố 2 mặt tiền 3 tầng
1.2. Thông tin dự án thiết kế nhà phố 3 tầng
- Tên dự án: Thiết kế nhà phố 3 tầng mặt tiền 4m – NP2401
- Diện tích: 4m x 12,4m
- Số tầng: 3 tầng
- TK: KTS.Kiến trúc Đông Dương
2. Thiết kế nhà phố 3 tầng mặt tiền 4m – Phối cảnh 3D nhà phố 3 tầng hiện đại
Sở hữu mặt tiền 4m, chiều sâu 12,4m thì bạn sẽ xây dựng không gian sống của mình như thế nào để có thể trở nên nổi bật. Ngay trong bài viết sau đây, cùng Kiến Trúc Đông Dương chiêm ngưỡng hồ sơ thiết kế nhà ống 3 phòng ngủ đẹp nhất phố theo phong cách hiện đại, bố cục độc đáo, mới mẻ để cảm nhận được sự mới lạ của những ý tưởng sáng tạo.
2.1. Thiết kế nhà phố 3 tầng mặt tiền 4m – Sự độc đáo trong kiến trúc
Tổng quan mẫu thiết kế nhà phố 3 tầng mặt tiền 4m đem lại cho người nhìn một cảm giác đầy trang nhã và thanh lịch. Đây chắc chắn là mẫu nhà đẹp tuyệt vời dành cho những gia chủ là người tinh tế, dịu dàng. Mỗi tầng mang một kiểu dáng kiến trúc khác nhau, tạo nên sự đa dạng và lạ mắt trong phong cách thiết kế tổng thể.
Điểm nhấn ở khu vực mặt tiền chính là các mảng tường được gia chủ ốp gạch đem đến sự khác biệt cho công trình cùng sự tương phải rõ nét với sơn trắng. Điều này cũng giúp ích cho việc vệ sinh, dễ lau chùi vào những ngày thời tiết xấu. Khu vực tầng 2 và tầng 3 của công trình đều được lắp đặt hệ thống đèn LED âm trần chiếu sáng giúp cho căn nhà lung linh hơn vào mỗi buổi tối.
Nếu như ở kiến trúc cổ điển, sự bề thế làm nên vẻ đẹp xa hoa, quyền quý. Thì ở thiết kế nhà phố 3 tầng mặt tiền 4m hiện đại, sự phá cách về mặt ngoại thất, mảng miếng khiến người nhìn cảm nhận được sự nhẹ nhàng tinh tế và sang trọng. Hình khối được các kiến trúc sư Kiến Trúc Đông Dương sử dụng vuông vức và có sự nhô ra, thụt vào hợp lý để tạo sự bắt mắt cho thiết kế.
Mẫu nhà phố 2 mặt tiền được tạo khối liền mạch. Mặt bên ngõ được mở cửa kính cố định để lấy sáng tối đa phía cầu thang.
Với không gian nhà phố việc đưa cây vào trong nhà hoặc tạo sân vườn là điều không thể. Tuy nhiên kiến trúc sư vẫn cố gắng đưa những mảng xanh vào nhà bằng cách tạo các bồn cây phía ngoài ban công.
2.2. Màu sắc hài hòa trong thiết kế nhà phố 3 tầng mặt tiền 4m
Trong thiết kế nhà phố 3 tầng mặt tiền 4m, Mặt tiền sử dụng màu sơn trắng chủ đạo, kết hợp với kính cường lực khung nhôm đen tạo cảm giác thông thoáng lại vừa tiết kiệm được chi phí xây dựng. Hệ thống cửa kính xingfa là nét đặc trưng của phong cách hiện đại cũng giúp căn nhà trở nên thoáng đãng hơn và thu hút được ánh sáng cho không gian nội thất hơn.
Bên cạnh đó phần trần ở khu vực mỗi tầng đều được ốp lam gỗ màu nâu sang trọng, tạo điểm nhấn hấp dẫn cho công trình nhà phố đẹp.
2.3. Vật liệu hoàn thiện nhà phố 3 tầng
Với kinh phí đầu tư tiết kiệm vừa phải, Kiến trúc sư đưa ra phương án phối cảnh cho nhà phố 2 mặt tiền tương đối đơn giản, vật liệu phổ biến là gạch ốp tường và sơn màu trắng sư. Kết hợp thêm đèn tường, đèn downlight để làm điểm nhấn về đêm.
Cửa nhôm kính, cổng chính được sản xuất tại xưởng của Kiến Trúc Đông Dương. Giúp Tiết kiệm chi phí lên tới 30%.
3. Mặt bằng công năng trong thiết kế nhà phố 3 tầng mặt tiền 4m
Thiết kế nhà phố 3 tầng mặt tiền 4m hiện đại với tổng diện tích 4m x 12,4m được bố trí đầy đủ công năng sử dụng với 3 phòng ngủ thoáng rộng. Với ưu điểm 2 mặt tiền, không gian được mở thoáng tối đa để lấy sáng và thông gió. Cùng Kiến Trúc Đông Dương xem hình ảnh mặt bằng dưới đây và phân tích sự hợp lý của toàn bộ căn nhà.
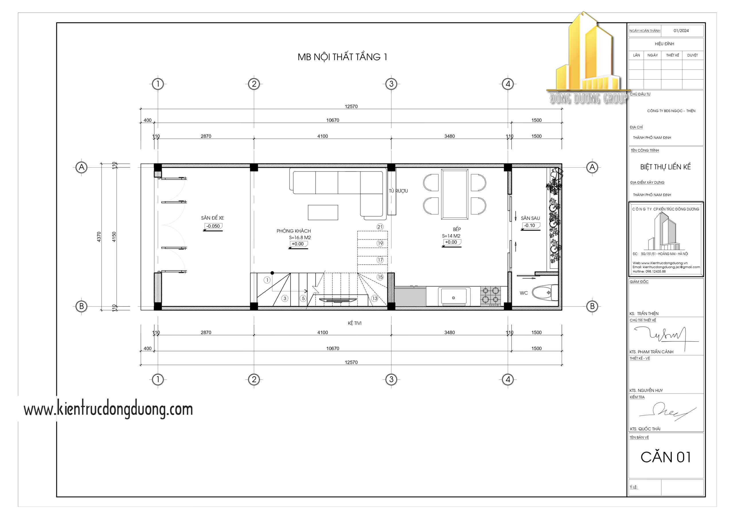
3.1. Thiết kế nhà phố 3 tầng mặt tiền 4m – Mặt bằng tầng 1
Nhà phố 3 tầng hiện đại được bố trí các không gian mạch lạc rõ ràng. Tầng 1 ưu tiên phòng khách thoáng rộng, Cầu thang 1 vế tiết kiệm tối đa khoảng cầu thang cho phòng khách.
Bếp và bàn ăn được bố trí phía trong, cùng với không gian sân sau lấy sáng và thông gió. Một vệ sinh nhỏ được bố trí phía ngoài. Không gian tầng 1 tương đối hợp lý.
Bên cạnh đó, Tầng 1 nhà phố còn được thiết kế có phần dành riêng cho khu vực đậu xe. Phòng khách được thiết kế rộng rãi, nội thất được bố trí hiện đại và đơn giản. Ngay sau bên trong là không gian bếp và phòng ăn được tích hợp, giúp cho không gian sinh hoạt của gia đình thực sự rộng và thoải mái nhất. Phòng WC chung được đặt cuối nhà, tận dụng tối đa diện tích trống, lại đem đến hiệu quả thẩm mỹ cao.
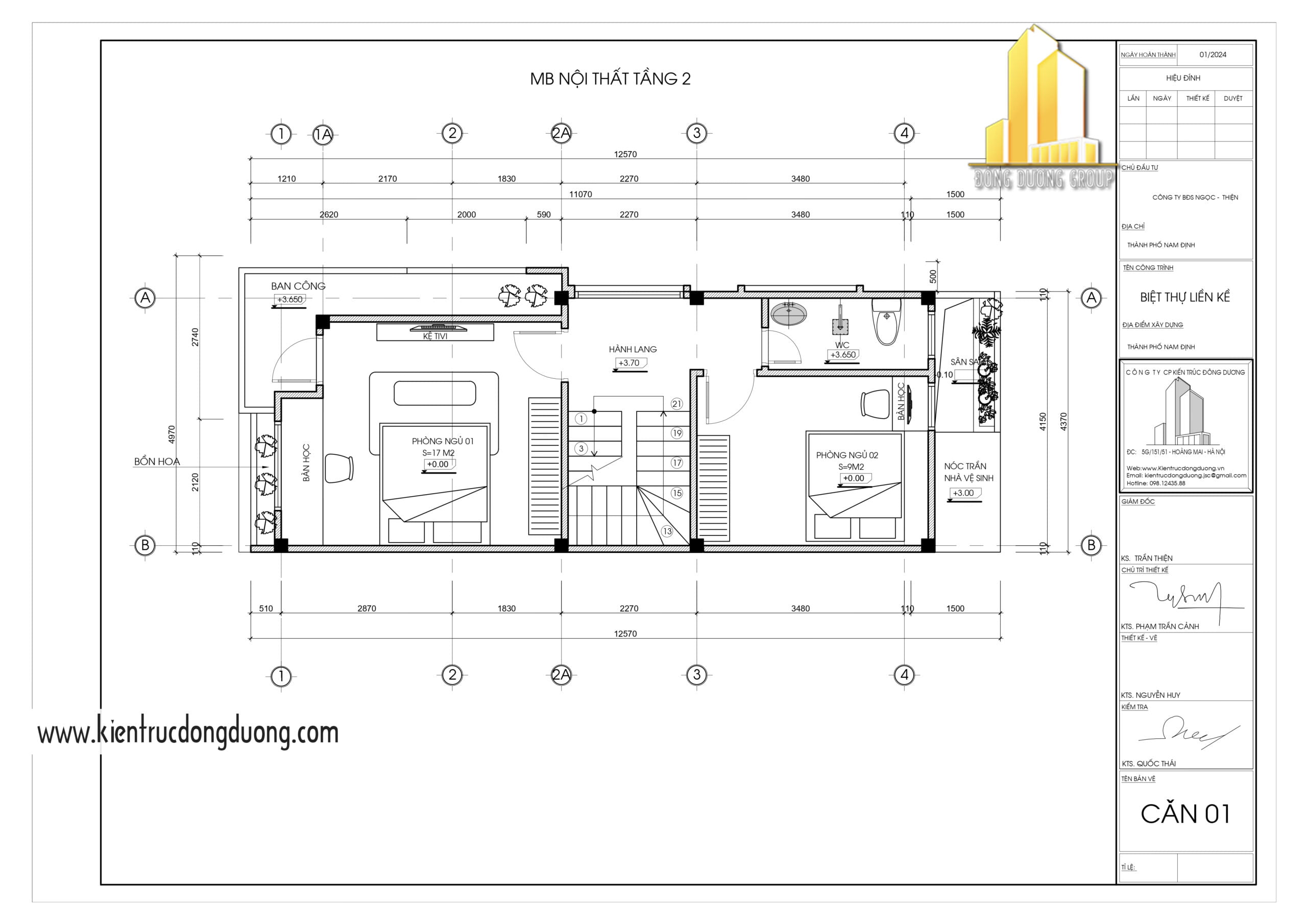
3.2. Thiết kế nhà phố 3 tầng – Mặt bằng tầng 2
Mặt bằng tầng 2 dành riêng cho việc nghỉ ngơi thư giãn, với 2 phòng ngủ rộng rãi. Nội thất mỗi phòng đều được bố trí đầy đủ và gọn gàng đáp ứng được mọi nhu cầu của các thành viên trong gia đình. Khu vực phía sau sẽ là phòng vệ sinh chung rộng.
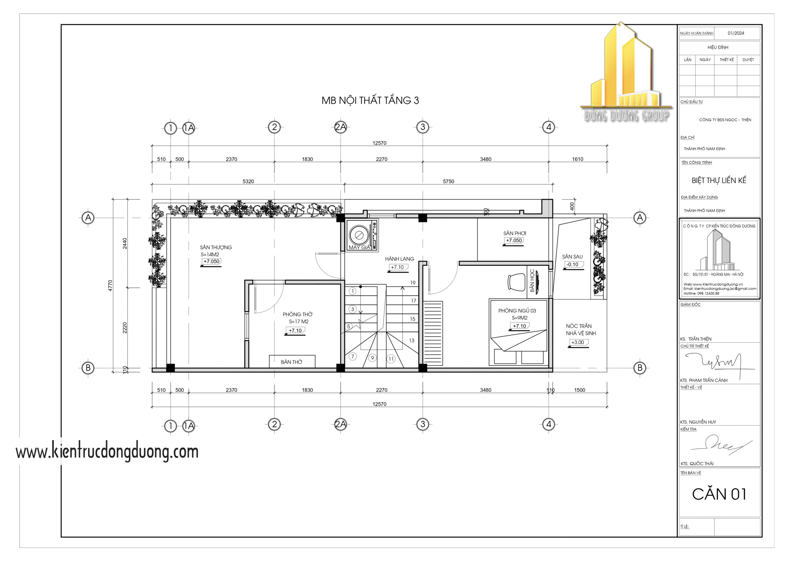
3.3. Thiết kế nhà phố 3 tầng mặt tiền 4m – Mặt bằng tầng 3
Tầng 3 được bố trí 1 phòng ngủ và 1 phòng thờ nhỏ, không gian còn lại là sân thượng thoáng rộng, làm sân phơi giặt và trồng cây cối thư giãn.
Mặt bằng tầng 3 được sắp xếp lần lượt là sân thượng, phòng thờ, phòng ngủ vô cùng yên tĩnh, với đầy đủ nội thất cùng wc khép kín và sân phơi cuối nhà. Sân thượng phía trước rộng rãi có thể là địa điểm để gia chủ có thể thư giãn ngoài trời.
Với mảnh đất hình chữ nhật vuông vắn, mặt bằng công năng tương đối dễ phân chia, các không gian được tối ưu tránh không gian chết.
4. Kiến Trúc Đông Dương đơn vị xây dựng nhà trọn gói uy tín chuyên nghiệp
4.1. Giới thiệu về Kiến Trúc Đông Dương
Kiến Trúc Đông Dương, với nhiều năm hoạt động trong lĩnh vực xây dựng, tự hào là đối tác đáng tin cậy của quý khách hàng. Chúng tôi không chỉ xây dựng nhà ở, chúng tôi còn xây dựng tổ ấm – mỗi công trình là một tác phẩm với sự kết hợp hoàn hảo giữa thẩm mỹ và chức năng, được tạo nên bởi đội ngũ chuyên gia hàng đầu.
Dịch vụ xây nhà liền kề trọn gói của chúng tôi là sự lựa chọn hoàn hảo cho những ai mong muốn một quy trình xây dựng suôn sẻ, tiết kiệm và minh bạch. Từ khâu thiết kế sơ bộ, lập kế hoạch dự án, đến việc chọn lựa vật liệu và thi công, mọi công đoạn đều được quản lý chặt chẽ bởi một đội ngũ chuyên nghiệp, giảm thiểu mọi rủi ro và đảm bảo tiến độ công trình.


Việc lựa chọn dịch vụ Xây nhà trọn gói của Kiến Trúc Đông Dương không chỉ là quyết định đầu tư thông minh cho không gian sống lý tưởng của bạn mà còn là sự đảm bảo về chất lượng, tiến độ và hiệu quả tài chính. Với kinh nghiệm dày dặn, đội ngũ chuyên nghiệp và quy trình làm việc khoa học, Kiến Trúc Đông Dương cam kết mang đến cho khách hàng những công trình đẳng cấp, bền vững qua thời gian, phản ánh đúng nhu cầu và phong cách sống của từng khách hàng.
Đừng chần chừ trong việc tạo dựng không gian sống mơ ước của bạn. Hãy liên hệ ngay với Kiến Trúc Đông Dương để được tư vấn và hỗ trợ tận tình về dịch vụ: Thiết kế kiến trúc, Thiết kế nhà phố 3 tầng mặt tiền 4m. Chúng tôi sẵn sàng lắng nghe, chia sẻ và biến ý tưởng của bạn thành hiện thực với chất lượng và dịch vụ tốt nhất. Đầu tư cho tổ ấm là đầu tư cho tương lai – Hãy để Kiến Trúc Đông Dương đồng hành cùng bạn trên hành trình này.
4.2. Thông tin liên hệ Kiến Trúc Đông Dương
CÔNG TY CỔ PHẦN KIẾN TRÚC ĐÔNG DƯƠNG
Địa chỉ: HA9-70, Đường Hải Âu 9, KĐT Vinhome OCean Park 2, Văn Giang, Hưng Yên
Hotline: 098.1243.588
Website: https://kientrucdongduong.com

























