Trong bối cảnh tốc độ đô thị hóa ngày càng nhanh, nhu cầu về chỗ ở tại các thành phố lớn không ngừng gia tăng. Không chỉ người lao động, sinh viên mà ngay cả các gia đình trẻ cũng có xu hướng tìm đến chung cư mini như một giải pháp tiết kiệm và tiện lợi. Chính vì vậy, việc đầu tư xây dựng các tòa chung cư mini cho thuê trở thành lựa chọn sinh lời hấp dẫn cho nhiều chủ đầu tư, thiết kế 5 tầng là phương án tối ưu, đúng với quy chuẩn xây dựng tại thành phố Hà Nội.
Trong bài viết này, chúng tôi sẽ giới thiệu chi tiết về mẫu thiết kế chung cư mini 5 tầng 75m², gồm 12 phòng khép kín cho thuê, có thang máy, chỗ để xe và sân thượng phơi đồ. Đây là phương án thiết kế điển hình giúp tối ưu công năng sử dụng, đảm bảo tiện nghi và mang lại hiệu quả kinh tế cao.
1.Tổng quan dự án thiết kế chung cư mini 5 tầng 75m²
Dự án được triển khai trên khu đất diện tích 75m² với mục đích xây dựng tòa chung cư mini 5 tầng cho thuê. Chủ đầu tư đưa ra các yêu cầu cơ bản như:
- Tối ưu số lượng phòng cho thuê, đảm bảo khép kín và tiện nghi.
- Có khu vực để xe rộng rãi, an toàn cho người thuê.
- Lắp đặt thang máy hiện đại để thuận tiện di chuyển.
- Bố trí sân thượng phơi đồ, trồng cây xanh và có thể tận dụng làm không gian sinh hoạt chung.
Với những yêu cầu trên, kiến trúc sư đã đưa ra giải pháp thiết kế khoa học, đảm bảo công năng và thẩm mỹ, đồng thời đáp ứng tiêu chuẩn xây dựng nhà cho thuê tại đô thị.
- Thiết kế đảm bảo an toàn phòng cháy chữa cháy
- Tất cả các phòng đều có nơi thoát hiểm an toàn
- Thiết kế theo tiêu chuẩn quy hoạch đô thị
Thông tin dự án:
- Tên dự án: Thiết kế chung cư mini 5 tầng
- CĐT: Chị Tuyết
- Địa điểm xây: Hà Nội
- Diện tích: 13m x 5m
- Thiết kế: Kiến Trúc Đông Dương
- Phong cách: Hiện đại tối giản
- Quy mô: 5 tầng 1 tum, 12 phòng ngủ
Có thể bạn cũng thích:
- Tổng hợp các mẫu Biệt Thự phố đẹp
- Thiết kế nhà biệt thự 3 tầng hiện đại tại Ninh Bình
- Thiết kế nhà phố liền kề diện tích 46m2 hiện đại
2. Phương án thiết kế mặt bằng công năng chung cư mini 5 tầng cho thuê.
Mục đích thiết kế phòng trọ cho thuê nên các tầng cần phải đảm bảo tối ưu phân chia phòng nhiều nhất có thể, mỗi phòng đều phải đáp ứng các điều kiện sinh hoạt cơ bản của người đi thuê. Tiêu chuẩn thiết kế cần đảm bảo riêng tư và thông thoáng, tiêu chuẩn kỹ thuật cần đảm bảo an toàn phòng cháy chữa cháy, các phòng đều phải có lối thoát hiểm riêng.
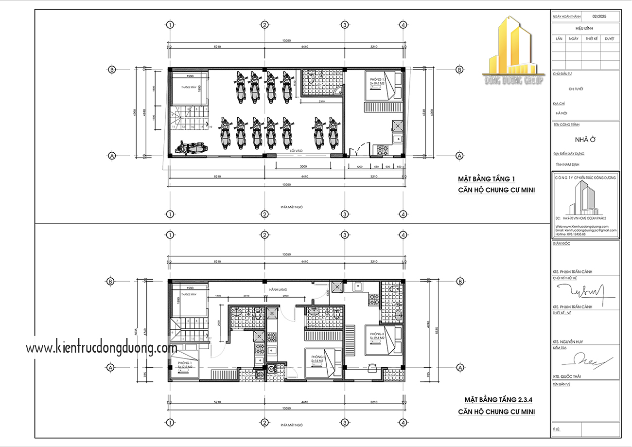
2.1. Tầng 1 – Khu vực để xe & tiện ích chung.
Tầng 1 được bố trí chủ yếu làm khu để xe máy, giúp người thuê yên tâm về vấn đề an toàn phương tiện. Ngoài ra còn có:
- Sảnh chung dẫn vào thang máy và thang bộ.
- Hệ thống camera an ninh được lắp đặt để đảm bảo an toàn tuyệt đối, thiết bị phòng cháy chữa cháy.
- Ngoài ra còn có thể tận dụng làm 1 phòng khép kín diện tích gần 20m2, có lối đi riêng. Căn phòng được bố trí đầy đủ tiện ích của một phòng trọ đó là giường ngủ, tủ đồ, bàn bếp nấu, vệ sinh riêng.
Nhờ vậy, tầng 1 của chung cư mini 5 tầng cho thuê không chỉ đáp ứng nhu cầu gửi xe mà còn tạo sự chuyên nghiệp cho toàn bộ công trình. Tận dụng cho thuê để tăng thu nhập.
2.2 Tầng 2 – 4: Mặt bằng công năng Khu căn hộ cho thuê
Ba tầng này được thiết kế đồng bộ, mỗi tầng gồm 3 phòng khép kín, tổng cộng 9 phòng. Điểm nhấn trong thiết kế:
- Mỗi phòng đều có bếp, WC riêng, tạo sự riêng tư cho người thuê.
- Diện tích phòng hợp lý (15–20m²), đủ thoải mái cho sinh viên, cặp vợ chồng trẻ hoặc người đi làm.
- Bố trí cửa sổ, ban công để tận dụng ánh sáng tự nhiên và thông gió.
- Nội thất cơ bản: bếp, tủ, khu vệ sinh hiện đại.
Thiết kế này mang đến sự tiện nghi, giúp người thuê có cảm giác “như ở nhà” thay vì chỉ là chỗ trọ tạm thời.
2.3 Tầng 5 – Thiết kế 2 phòng khép kín và khoảng lùi sân thượng theo tiêu chuẩn quy định.
Tầng 5 của căn chung cư mini có điểm đặc biệt đó là được xây lùi vào khoảng 3m theo quy định của luật xây dựng, vừa để đảm bảo đúng theo luật xây dựng mới, vừa tạo khoảng không gian lý tưởng cho người thuê phòng có không gian mở.
Tầng này được phân chia 2 phòng khép kín có đầy đủ nội thất cơ bản, cửa sổ và ban công riêng, ngoài ra, khoảng sân rộng phía trước được tận dụng làm sân phơi đồ và trồng cây xanh.
Ngoài ra, tầng tum trên cùng cũng được tận dụng sân thượng làm sân giặt phơi cho các phòng bên dưới, đồng thời tạo khoảng không gian xanh thư giãn kết nối cộng đồng người thuê.
3. Lợi ích khi đầu tư chung cư mini 5 tầng cho thuê
Nếu bạn là nhà đầu tư bất động sản thì sẽ nắm rõ quy định phân lô tại các thành phố lớn hiện nay, diện tích trên 45m2 mới được cấp sổ, vậy nên việc sở hữu những mảnh đất từ 50m2 đến dưới 90m2 sẽ rất khó để tách đất xây nhà như trước.Hơn nữa, với giá đất hiện tại (2025) thì bạn xây nhà ở gia đình trên mảnh đất lớn thế này cũng khó có thể tìm được khách mua.vậy giải pháp để mảnh đất vẫn sinh lợi nhuận chính là xây dựng nhà cho thuê.
Và lợi ích thấy rõ nhất khi đầu tư vào chung cư mini 5 tầng cho thuê tại các thành phố lớn như Hà Nội, Đà Nẵng, TP. Hồ Chí Minh đó là:
- Nhu cầu thuê cao: Ở các thành phố lớn, số lượng sinh viên, người lao động nhập cư ngày càng nhiều. Với thiết kế khép kín, tiện nghi, chung cư mini luôn trong tình trạng “cháy phòng”.
- Vốn đầu tư vừa phải – thu hồi nhanh: So với chung cư thương mại, chi phí đầu tư chung cư mini thấp hơn nhiều nhưng tỷ suất lợi nhuận cho thuê cao. Với 12 phòng, nếu giá thuê 4–5 triệu/tháng, doanh thu hàng tháng có thể đạt 50–60 triệu.
- Công năng đa dạng – dễ quản lý: Mỗi phòng khép kín như một căn hộ nhỏ, người thuê độc lập trong sinh hoạt. Chủ đầu tư dễ quản lý hơn, ít phát sinh tranh chấp hay rắc rối.
- Khả năng tăng giá trị tài sản: Ngoài doanh thu từ cho thuê, tòa chung cư mini còn giúp gia tăng giá trị bất động sản, đặc biệt khi khu vực xây dựng nằm trong vùng phát triển hạ tầng mạnh.
Tham khảo:
4. Báo giá & dịch vụ thiết kế – thi công trọn gói chung cư mini 5 tầng cho thuê.
4.1. Chi phí thiết kế chung cư mini 5 tầng
Tùy diện tích và yêu cầu chi tiết, chi phí thiết kế dao động từ 130.000 – 250.000 VNĐ/m² đối với bộ hồ sơ hoàn chỉnh. Tuy nhiên, đối với CĐT là chủ doanh nghiệp bất động sản chuyên kinh doanh nhà đất, Kiến Trúc Đông Dương luôn có gói thiết kế ưu đãi với những đối tác hợp tác lâu dài, giá vô cùng hợp lý cho quý anh chị làm nhà bất động sản. Hãy liên hệ trực tiếp qua Zalo để được báo giá chi tiết nhé.
Ngoài ra, nếu quý khách hàng có nhu cầu tìm hiểu giá thiết kế nhà phố, nhà vườn trọn gói hay tiết kiệm thì có thể tham khảo tại link:
<ul%3





















